摘要:为了保证柴油发电机组的正常运行和发配电的需要,柴油发电站除设置柴油发电机房外,还要设置控制室、变压器室、水库(含混合水池)、油库(含日用油箱)、水泵间、蓄电池间等。地下柴油电站还应设置进排风机室、排风排烟扩散室等。大型的(或独立的)柴油发电站还应设置操作人员休息室、电话间、备品间、机修间、卫生间等。
1.机房
机房是设置柴油发电机组的房间。为了使柴油发电机组正常工作,应对机房的构建提出具体要求。
在地面柴油发电站中,机房内应有良好的采光,并尽量使机房有穿堂风。在炎热地带,应设置天窗以便改善通风效果。机房应有两个出入口,与控制室之间的门应为隔音门,出入口门应为防火门并且一律向外开。设备出入口应满足机组及大型设备的运输要求。机房的最低高度应能满足检修机组时起吊设备最低起吊高度的要求。
在地下柴油发电站中,机房除尽量满足以上条件外,还应设置通风降温措施。为了使机组在战时外部染毒情况下能继续工作,机房通常是设置在密闭范围之外的,即染毒区。这样柴油发电机可以燃烧染毒的空气,不致消耗工程内部有限的新鲜空气。因此,机房与控制室、主体工程的连接处要密闭,对管沟等处要进行密闭处理。
2.控制室
控制室内装有发电机控制屏、高低压配电屏以及根据需要设置的操作控制台等。这些设备的操作主要是与机房进行密切频繁的联系。因此,控制室一般应紧靠机房设置。如果几个电站机房由一个中央控制室控制,可以离开机房一段距离(尽量减小与机房的距离),但必须采用比较完整可靠的遥控装置和通信联络、监视设备,以便机房与控制室的联系。
在地下工程中,控制室是清洁区,是用密闭墙与机房隔开的,此时密闭墙上可设置专用的密闭观察窗,以便观察机组运行情况。为了在机房染毒期间人员可以进入机房检修和操作机组,在控制室与机房间应设有专门的密闭通道,以及一系列的洗消设施。
另外,控制室也应设置向外开的防火门,出入口的数量应根据控制室的幅员来确定。控制室的顶棚、墙面、地面的装修要求,可根据经济条件适当提高,要做到明亮、通风、清洁。在与机房的隔墙上最好采用吸音、隔振等处理措施。
3.变压器室
由于柴油发电机的使用寿命短,在许多工程中为了提高供电的可靠性和用电的经济性,都考虑引接地方电网电源。在防护工程中变压器室往往都是设在防护工程内的,根据防护工程供电设计要求,要在柴油电站附近设置单独的变压器室。
变压器室应紧靠控制室设置,通常设置在电站机房内。另外,还要考虑变压器进出线的方便和满足运输变压器的要求。
通常一个工程只设置一台变压器,如确需设置两台以上时,除单台变压器容量小于50kVA外,不允许两台以上变压器放在同一变压器室内。
在防护工程中,变压器室是允许染毒的。
4.水库和油库
水库和油库通常设置在机房的一端或一侧。为了控制柴油发电机的进水温度,通常还要设置混合水池。工程中还设有日用油箱。
水泵和油泵一般都应设置在离水库、油库较近的单独房间内,具体位置确定要考虑水管、油管走向的方便。水管和油管应有明显标记予以区别。油库、油泵间应有严格的消防措施。
5.蓄电池室
在较大工程中,有多台电起动柴油发电机组或者兼有直流供电系统时,由于蓄电池数量较多,需专门设置蓄电池室。
蓄电池室的位置通常要靠近直流配电间、直流用电负荷、柴油发电机。
蓄电池室应有严格的防酸、防火、防爆措施。
6.机修、备品间
电站的机修间主要是考虑柴油发电机和发电机的检修而设置,其面积不宜过大,一般在机修间内设置一些专用的工具台和小型加工机床以及电、气焊设备,有的还可以设置洗手盆、拖布池等。
备品间主要是用来存放一些检修机组所用的储备零配件及检修用的消耗器材等。可设置存放零配件的专用柜、架等,以利零配件放置有序。
机修间、备品间一般可以设在一起,布置在机房附近,以便于检修工作的进行。在有些不大的电站中,机修间可不单设,只在机房里留有一定的空间作为检修机组用,备品间只用专用的柜、架代替。
另外,电气设备的储备件不宜与柴油发电机的零配件存放在一起,而是在控制室内设置专门的储备柜或储备间来放置电气设备的储备件。
7.进、排风机室
在地下工程中,柴油电站内通常要设置进、排风机。
电站的进风机和排风机通常设置在专门的风机室内。电站规模较小时也可不设专门的风机室,而是在电站的适当位置设置进、排风机。
风机室一般设置在机房靠近工程口部的一端,同时要考虑风管的走向方便。
柴油发电站的组成是要根据建设的技术要求确定的,以上各部分对于一个常设的柴油发电站都是必需的。临时发电站、移动式发电站都可以参照以上原则从简设置,船舶柴油发电站要根据其特点按有关部门要求布置。对于柴油发电站各组成部分的设置标准也要由各工程的实际情况而定。
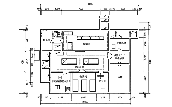
柴油发电站各组成部分的布置,要根据实际情况,综合考虑多种因素而定。图1-1示意了地下柴油发电站各组成部分的布置形式供参考,地面电站也可参考。

图1-1 发电机房与控制室平行布置电站